The show Spring Awakening explores the transformative time that is adolescence, and is coupled with the uncertainty of change and navigating sexuality and maturity. The teens are stuck between the clarity of childhood and the confusing new world of adulthood. This story highlights how far we still have to go when it comes to educating our youth and preparing them for the world.
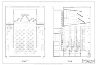
Our scenic goals for the production were to reinforce the characters’ struggles within the sharp and unyielding space that had been constructed by the adults of the world. As the teens navigate this maze-like world, they are constantly faced with new obstacles to overcome. At the end of their journey, they are able to see the light at the end of the tunnel and escape this harsh space.
To achieve this, I developed an environment with large, harsh walls, that are manipulated by the adults. The walls act as a maze that keeps the kids trapped inside. As we progress towards the end of the show, the walls are torn away, and we see light blowing through to the outside, and the kids are able to see beyond the world of childhood, into the freedom of adulthood.
Director - Portia Krieger
Scenic Designer - Max Okst
*Unproduced Design Project*



















Copyright © 2025 Max Okst Lighting Design
maxokst@gmail.com | (631) 605-9525
This website uses cookies. By continuing to use this site, you accept our use of cookies.